Galerie photo

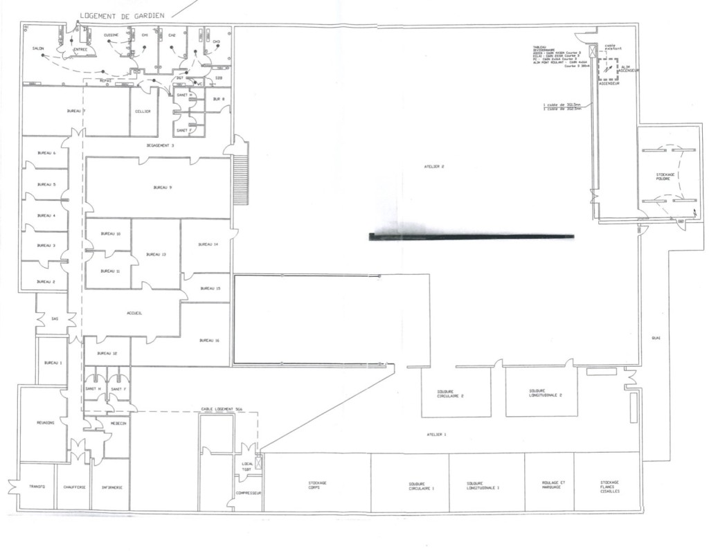
LOCAL D’ACTIVITÉ – 2 RUE DE LA FALAISE 95520 OSNY – 4 725 000 EUROS – 4300 M²
Réf : 337


0 m²

Immeuble ERP / salle évènementielle d’une surface bati de 4300 m2 avec terrain de 9000m² pouvant accueillir 1700 personnes accompagné de 200 places de parking.
Possibilité de créer un bâtiment commercial.
Convention de servitude signée avec RTE (réseau de transport d’électricité) pour l’implantation de lignes aériennes en terrain agricole signée le 10 octobre 2016.
Cette servitude prévoit de faire passer les conducteurs aériens au-dessus des parcelles suivantes sur une longueur totale d’environ 90 mètres, se décomposant en :
– 85 mètres sur la parcelle AY10 entre le support n°3N et le support n°4C
– 5 mètres sur la parcelle AY18 entre le support n°3N et le support n°4C.
Environ 600 000€ TVA à prévoir

  • Type : IMMEUBLE D'HABITATION
  • Ville : OSNY

Ce bien vous intéresse ?

Contactez-nous au 06 84 40 81 09, ou renseignez le formulaire ci-dessous.

    * Champs obligatoires

    Nos biens à la vente

    Voir les détails

    Immeuble à vendre – Proche place des Ternes – 1 566 m2 -32 960 000 € FAI

    PARIS 8EME ARRONDISSEMENT
    32 960 000 €

    VOIR LES DÉTAILS >
    Voir les détails

    Appartement rénové de 108m2 – Paris 75003 – Prix FAI 1 710 000 €

    PARIS 3EME ARRONDISSEMENT
    4 pièces
    1 710 000 €

    VOIR LES DÉTAILS >
    Voir les détails

    Cité Trévise – Bien atypique 130 m² avec souplex et cave voûtée

    PARIS 9EME ARRONDISSEMENT
    4 pièces
    1 690 000 €

    VOIR LES DÉTAILS >
    Voir les détails

    Appartement 5 pièces – 4 chambres – 3 salles de bains – 183m2 – Paris, 10e arr

    PARIS 10EME ARRONDISSEMENT
    5 pièces
    3 150 000 €

    VOIR LES DÉTAILS >
    Voir les détails

    Appartement hôtelier de 110m2 – 4e arrondissement – Ile Saint Louis -2 500 000€

    PARIS 4EME ARRONDISSEMENT
    2 500 000 €

    VOIR LES DÉTAILS >
    Voir les détails

    ENSEMBLE 3 APPARTEMENTS HOTELIERS 359M2 PARIS 75011

    PARIS 11EME ARRONDISSEMENT
    5 750 000 €

    VOIR LES DÉTAILS >
    Voir les détails

    Hôtel face à la mer 11 appartements La Ciotat proche Marseille

    LA CIOTAT
    4 200 000 €

    VOIR LES DÉTAILS >
    Voir les détails

    Appartement de type 2 pièces – 1 chambre – 55,52 m2 – Paris 8e

    PARIS 8EME ARRONDISSEMENT
    2 pièces
    750 000 €

    VOIR LES DÉTAILS >
    Voir les détails

    Appartement de type 5 pièces – 4 chambres – 97 m2 – Paris 8e

    PARIS 8EME ARRONDISSEMENT
    3 pièces
    2 105 000 €

    VOIR LES DÉTAILS >
    Voir les détails

    Appartement 3 pièces – 2 chambres – 70,64 m2 – Paris 8e

    PARIS 8EME ARRONDISSEMENT
    3 pièces
    1 365 000 €

    VOIR LES DÉTAILS >
    Voir les détails

    Appartement familial de réception de 325m2 – 5 chambres – Paris 16e

    PARIS 16EME ARRONDISSEMENT
    7 pièces

    VOIR LES DÉTAILS >
    Voir les détails

    STUDIO ENTIEREMENT RENOVE 28M2 PARIS 17e

    PARIS 17EME ARRONDISSEMENT
    2 pièces
    399 000 €

    VOIR LES DÉTAILS >
    Voir les détails

    Superbe appartement de 115m2 – Paris 16e

    PARIS 16EME ARRONDISSEMENT
    4 pièces
    1 190 000 €

    VOIR LES DÉTAILS >
    Voir les détails

    Local commercial – Centre ville de Nogent sur Marne – 82,6 m2 – 643 950 € FAI

    NOGENT SUR MARNE
    643 950 €

    VOIR LES DÉTAILS >
    Voir les détails

    Maison familiale de 194m2 entièrement rénovée avec terrasse – Chavenay – 695 000€

    CHAVENAY
    6 pièces
    695 000 €

    VOIR LES DÉTAILS >
    Voir les détails

    IMMEUBLE MIXTE – PARIS 10ème – 250 M2 – 1 890 000 € FAI

    PARIS 10EME ARRONDISSEMENT
    1 890 000 €

    VOIR LES DÉTAILS >
    Voir les détails

    HÉBERGEMENT HÔTELIER – Quartier Place Beauvau – 107 m2 – 2 265 220 € FAI

    PARIS 8EME ARRONDISSEMENT
    2 265 220 €

    VOIR LES DÉTAILS >
    Voir les détails

    HÉBERGEMENT HÔTELIER 78m2 PARIS 3e arrondissement

    PARIS 3EME ARRONDISSEMENT
    1 250 800 €

    VOIR LES DÉTAILS >
    Voir les détails

    IMMEUBLE RESIDENTIEL pour du meublé touristique – Courbevoie quartier Bécon – 449 m2 – 2 835 000 € FAI

    COURBEVOIE
    2 835 000 €

    VOIR LES DÉTAILS >
    Voir les détails

    Immeuble mixte – Fontenay Sous Bois quartier VERDUN – 2 060 000 € FAI – 593 m2

    FONTENAY SOUS BOIS
    1 751 000 €

    VOIR LES DÉTAILS >
    Voir les détails

    Plateau de bureaux à vendre occupé – Quartier Le Peltier Opéra – 48,23 m2 – 695 000 FAI

    PARIS 9EME ARRONDISSEMENT
    695 000 €

    VOIR LES DÉTAILS >
    Voir les détails

    IMMEUBLE D’HABITATION – 32/34 RUE DE LA COUR DES NOUES 75020 PARIS – 662,58 M2

    PARIS 20EME ARRONDISSEMENT
    5 300 000 €

    VOIR LES DÉTAILS >
    Voir les détails

    Appartement à vendre – 65 av Georges MANDEL 75016 PARIS – 3,5 M € FAI –

    PARIS 16EME ARRONDISSEMENT
    6 pièces
    3 500 000 €

    VOIR LES DÉTAILS >
    Voir les détails

    Ensemble immobilier mixte 33 lots habitation + 4 locaux commerciaux – 2271 m2 – Chelles – 7 500 000 € FAI

    CHELLES
    7 500 000 €

    VOIR LES DÉTAILS >
    Voir les détails

    Immeuble d’habitation 11 lots + parkings – 305 m2 – Villeparisis (77)

    VILLEPARISIS
    1 248 000 €

    VOIR LES DÉTAILS >
    Voir les détails

    Immeuble d’habitation 6 lots + sous sol – 199 m2

    BONNEUIL SUR MARNE
    884 000 €

    VOIR LES DÉTAILS >
    Voir les détails

    Local commercial / Airbnb – Georges Brassens – 70 m2

    PARIS 15EME ARRONDISSEMENT
    945 000 €

    VOIR LES DÉTAILS >
    Voir les détails

    Local commercial – 91 m2 – 210 000 € FAI

    BRETIGNY SUR ORGE
    210 000 €

    VOIR LES DÉTAILS >
    Voir les détails

    Domaine de L’Echeneau – Terrain de plus de 6 hectares – St Gervais les Trois Clochers Prix 424 000 € HAI – 6 hectares

    ST GERVAIS LES TROIS CLOCHERS
    420 000 €

    VOIR LES DÉTAILS >
    Voir les détails

    LOCAL COMMERCIAL – 11 AVENUE DE SAINT-OUEN 75017 PARIS –

    PARIS 17EME ARRONDISSEMENT
    555 000 €

    VOIR LES DÉTAILS >
    Voir les détails

    IMMEUBLE D’HABITATION – 68 RUE DES TOURNELLES 75003 PARIS – 4 499 000 € FAI – 433 m2

    PARIS 3EME ARRONDISSEMENT
    4 499 000 €

    VOIR LES DÉTAILS >
    Voir les détails

    LOCAUX D’ACTIVITES – 9 RUE DU CHENE A CHAMPAGNE 91700 FLEURY-MEROGIS 8,5% – 865 000 € FAI

    FLEURY MEROGIS
    865 000 €

    VOIR LES DÉTAILS >
    Voir les détails
    PROMESSE EN COURS

    PC PURGE DE TOUT RECOURS – 9 IMPASSE DUMUR 92110 CLICHY – 3 498 000 EUROS FAI

    CLICHY
    3 498 000 €

    VOIR LES DÉTAILS >
    Voir les détails

    Hôtel social – 29 chambres – 815 m2

    MAUREGARD
    2 862 000 €

    VOIR LES DÉTAILS >
    Voir les détails

    Immeuble d’habitation 7 lots + 1 box – métro Gabriel Peri – 215 m²

    GENNEVILLIERS
    745 000 €

    VOIR LES DÉTAILS >
    Voir les détails

    IMMEUBLE D’HABITATION – quartier Max Dormoy – 490 m2 – 3 150 000 € FAI

    PARIS 18EME ARRONDISSEMENT
    3 150 000 €

    VOIR LES DÉTAILS >
    Voir les détails

    Projet de construction : 18 logements dont 7 logements et un local commercial créés – Mairie d’Asnières – 379m2 – 2,8 M € FAI

    ASNIERES SUR SEINE
    2 846 250 €

    VOIR LES DÉTAILS >
    Voir les détails

    Local commercial hébergement hôtelier – métro Ourq – 105,49m2

    PARIS 19EME ARRONDISSEMENT
    1 178 000 €

    VOIR LES DÉTAILS >
    Voir les détails

    Immeuble d’habitation – 339m2 sur parcelle constructible de 600m2

    VIRY CHATILLON
    938 000 €

    VOIR LES DÉTAILS >
    Voir les détails

    Immeuble d’habitation – 24 lots + 4 locaux commerciaux – La Plaine – 619 m2

    ST DENIS
    2 700 000 €

    VOIR LES DÉTAILS >
    Voir les détails

    IMMEUBLE COMMERCIAL – 126 RUE DU MARECHAL LECLERC 94410 SAINT-MAURICE

    ST MAURICE
    2 650 000 €

    VOIR LES DÉTAILS >